top of page

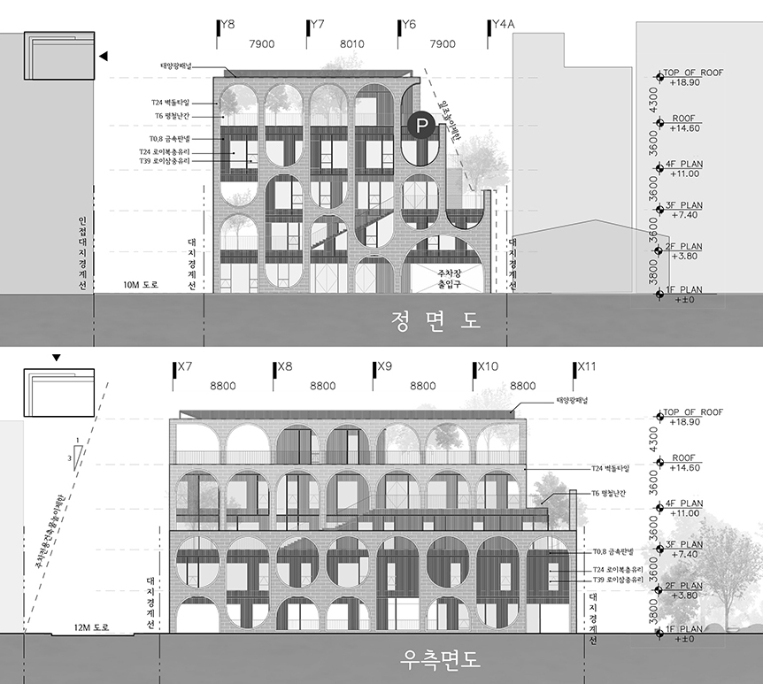
서초 구룡공영주차장 복합시설 신축 설계공모

Unbuilt

2021

공공/복지

대한민국 서울특별시 서초구

(주)에스지종합건축사사무소

Project Description

서초 구룡공영주차장 복합시설 신축 설계공모

Copyright © 2025 by (주)도시건축 숨 건축사사무소 All rights reserved.     

bottom of page